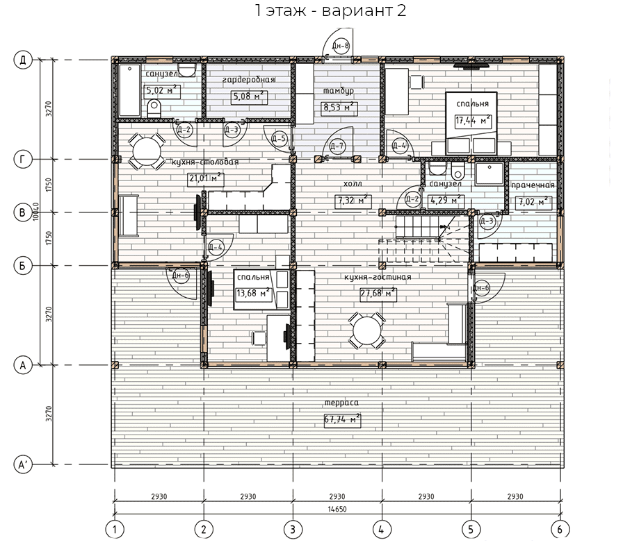
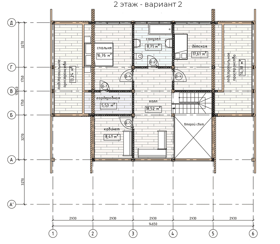
ДОМОКОМПЛЕКТ
14 696 000 ₽
- Надежный каркас из клееного бруса собственного производства с запатентованной технологией терморазрыва + клееные лаги пола 1 и 2 этажа, стропила
- Энергоэффективный (А++) комплект утепления стен и кровли - утеплитель PIR
- Панорамные, максимально теплые, двухкамерные, ударопрочные стеклопакеты
- Временная входная дверь
- Уникальная технология терморазрыва
- Базовое утепление пола 1 этажа
- Эффективная шумоизоляция всего дома - продуманное сочетание утеплителя и звукопоглощающих материалов стен и крыши по всему периметру
- Полный комплект метизов и расходных материалов


